A
100%
A
Nucleus Living – The Basics, Experiences, Outlook
Abstract

Nucleus living (Nukleuswohnen) is a new, flexible form of housing designed to allow flats to grow and shrink without the need for conversion. Invented and developed by some of the founders of Kooperative Großstadt eG in Munich as part of their programmatic work, it was first used in the young cooperative's first project, San Riemo.

This article was also published under the German title „Nukleuswohnen – Grundlagen, Erfahrungen, Ausblicke oder San Riemo und die Folgen”. For the German version see: Fischer, F., Wagner, Y., & Almannai, R. (2025). Nukleuswohnen: Grundlagen Erfahrungen Ausblicke oder San Riemo und die Folgen. In D. Bayer, J. Graf, B. Lenherr, B. Milla, & E. Stricker (Hrsg.), Wege zur Bauwende: Klima- und ressourcenschonend konstruieren (1. Auflage). Triest Verlag. This version was translated into English and graphically revised for wohnbau.site.

Download PDF: EN / DE
Quote Article
1. Breathing folds

From the outset, the activities of the KOOPERATIVE GROSSSTADT eG [1] cooperative were meant by its founding members to pursue research on construction projects. The kind and extent of this research, however, was not really clear. Roughly speaking, the elusive watchword ‘(daring to) experiment’ played a key role. One important topic since the founding symposium of 2016 has been the ‘Breathing Building’. [2] Another one, which was added in the past three years, is that of hyper-collectivity and hyper-participation in the planning process and, thus, the avoidance of performance gaps — but this is not the point. Breathing buildings are about flexible boundaries or even the ‘non-self-containment’ of individual units. Structurally ‘rigid’, although in their use very flexible switch rooms should form something like the necessary breathing folds of a residential building in interaction with communal spaces.

Info graphic explains the concept of the nucleus living.
1
Composition of the nucleus.

The essential form of housing that the cooperative has developed or rather invented for this purpose is 'nucleus living'. A specific form of this was implemented in planning terms in parts [3] of the first San Riemo building by the architects Anne Femmer, Juliane Greb, Petter Krag, and Florian Summa. In the eyes of the authors, nucleus living is basically an important, currently still experimental form of living that can or rather could meet the criteria of sufficiency in housing construction. Assuming a solution to current problems with regard to technicalities in building law and funding, it could make a decisive typological contribution to a spatially efficient, but by no means cramped, lifelong living in one and the same flat. [4]

Info graphic explains the concept of the nucleus living.
2
Function of the nucleusliving typology.
Three children are playing at a table in the centre of a living room.
3
Treppenzimmer in San Riemo.
2. Nucleus living study

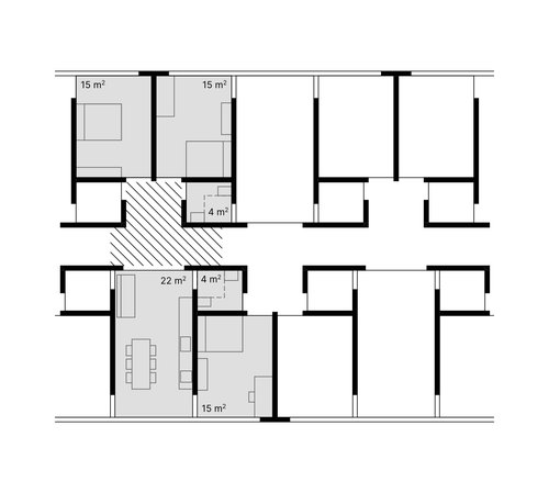
At the Chair of Housing and Basics of Design (Wohnbau) at RWTH Aachen University, the authors have been conducting an in-depth research study on the basics, experiences, and possible further development of nucleus living. In addition to the authors' [5] own personal experiences with nucleus living in San Riemo, the following remarks relate to the first excerpts and findings of this study.

The technocratic side of nucleus living can be told in a nutshell: ‘Lifelong adequate living space for everyone and at any time’. What sounds like a form of socialism requires quite complex — albeit not very complicated — mechanics in the background when applied to an entire building; these should react rapidly and at any time to the individual needs of residents or households and household sizes in a residential building. The complexity of the mechanics or rather the complex combinatorics of individual rooms should be handled in almost inverse proportionality through an extremely simple, clear, and robust basic structure. In the best case, this allows a switching of rooms or a constant (re)configuration of flats without any conversions, or complicated or expensive displacement, or even the provision of movable partition walls but, instead, employing a very simple ‘door open, door closed’ principle. [6]

3. Initial idea and reversion reference

Nucleus living was invented during the development of the programmatic foundations for the San Riemo project within a small circle composed of the founding members of the Kooperative Großstadt and fed into the competition brief of the open architecture competition [7] as typological speculation. Competition participants were asked to develop specific architectural solutions or interpretations of the concept in their projects. The cooperative thus deliberately and possibly even naively addressed the grand promise of flexibility in architecture or living, to which until now the stigma of supposed failure has often or almost always been attached; [8] it was specifically indicated that flexibility should not at all be achieved thanks to flexible walls or other structurally complex measures but, instead, through a very flexible distribution and allocation of pre-equipped switchable individual rooms. [9]

A stay in a holiday flat straddling the hallway in the Kurhaus Bergün spa hotel (CH) in the summer of 2016 provided initial inspiration. For the development of the idea, the (in essence) rather banal hotel central corridor layout represented a safe fallback option for the concept feasibility. Accordingly, a flat would consist of individual functions, which would not have to be located in directly adjacent or contiguous rooms, but connected via a semi-public or semi-private (as you wish) hallway.

Floor plan of the Kurhaus Bergün.
4
Floor plan of the Kurhaus Bergün.
View from one hotel room to the next.
5
Room switchable via the corridor in the Kurhaus Bergün.
View from one hotel room to the next.
6
Directly connectable room in the Kurhaus Bergün.

More specifically in the Kurhaus Bergün, [10] this concerned the bedroom (with double bed and a sink) on one side of the hallway, and the morning room with a small kitchenette, dining table, and sofa on the other side of the hallway and, once again, at some distance (in this case) the shared toilets and showers, which could also be reached via the hotel hallway on the same floor. Depending on the amount of space required by the guests, the holiday flat can also be extended at any time by adding bedrooms across the hallway or directly through doors between rooms.

However, this model would ultimately amount to a complete atomisation of the flat. In contrast, the original conception of nucleus living discussed here is based on a spatially coherent nucleus consisting of a living room with a kitchen or an eat-in kitchen, a room, and a barrier-free bathroom.

4. Role models

The idea of basic flexibility is certainly nothing new in housing construction; [11] neither is the idea of switchable rooms. A well-known example for our analysis and investigation is provided by the project of the Wogeno cooperative in Hellmutstraße [12] (short: Hellmi) in Zurich. Research has shown that flexibility in the Hellmi has indeed worked quite well over the past 30 years — it has actually been experienced. In addition to purely switching rooms, incl. shares of the hallway, or even consolidating entire flats across the hallway into large shared flats, changing flats within the building has played an important role in this regard. Switching also serves as a support measure to generate the appropriate flats or flat sizes during the ‘swap’. Even the interconnecting of rooms is said to have happened once.

Hence during the study, this led to the hypothesis that existing residential building extension schemes could be designed so that only the extension floors would have to feature a form of hyperflexibility or pure nucleus living. These would then serve as a kind of flexibility kit for the whole building, in that it would always be possible to generate a suitable alternative flat above, as it were with a kind of ‘collateral relocation’ or ‘collateral switching’ of households that do not need any change at all.

However, what distinguishes the approach to nucleus living as attempted in San Riemo, compared to Hellmi, is the dissolution not only of the actual boundaries of flats — their stretching away across a floor or building but, rather, the deliberate option to dissolve the so-called self-containment of flats, [13] which was explicitly formulated in the competition call. [14] It was precisely this feature that was promoted by the tangible Kurhaus Bergün reference as a conceivable model. In addition, the nucleus living model also borrowed from the topic of ‘flexi-rooms’ in residential construction, that is to say, spaces that are not assigned to any flat within a building and can therefore be accessed directly by many residents either from circulation or communal areas. [15]

Comparison of three floor plans.
7
Role models.
Comparison of three floor plans.
8
Floor plan layout with nuclei and switchable individual rooms.
Comparison of three floor plans schemes.
9
Schematic and idealised illustration of the floor plan layout.
5. Differentiation from cluster living

The non-self-contained nature of the flats is a shared feature — albeit the only one — of nucleus dwellings and cluster dwellings. [16] However, as regards the distribution of functions and, likewise, the sharing of certain functions, compared to cluster living it is precisely towards privacy that nucleus living is oriented. Thus, in addition to embedding hyperflexibility, it also tries to work around the conflicts that repeatedly occur in and about communal living areas and kitchens in many cluster living schemes. Residential functions or kitchens are not shared, but individual rooms (or the pool of individual rooms) are and can be accessed by diverse residents — but of course not usually at the same time. So in this sense, we are explicitly not talking about shared bedrooms or even beds/dormitories.

Info graphic explains the concept of the nucleus living.
10
Function of the Clusterliving typology.
6. Concrete experiences and studies

As part of the research, an analysis based on the typologies developed for San Riemo during the competition and implementation project and on the Hellmi system is now being carried out, looking at advantages and disadvantages and, building on this, putting forward own schemes. Presently, the actual sociological aspects of housing or even possibly representative experiences in the San Riemo experiment are still in the background, at least in terms of scientific methods. For the time being, the study almost exclusively deals with mechanics in terms of purely structural architecture, area balances, and structural framework conditions such as construction law, subsidy eligibility criteria, fire protection, and cost-effectiveness. By all means, one may be highly critical of disregard for sociological and socio-psychological aspects, [17] since this form of housing obviously presents definite challenges for residents. This is all the more so because on the basis of (personal) findings and experiences regarding the San Riemo project that we developed on the cooperative side and more especially from our own residents' point of view, we propose that nucleus living should be implemented and tested more widely as a form of housing.

Comparison of three floor plans schemes.
11
Possible accesses per room.
Comparison of three floor plans schemes.
12
Switchability of the rooms.
Comparison of three floor plans schemes.
13
Fire protection scenarios.

Positive lessons from San Riemo include the spatial quality of the Treppenzimmer and of the inserted flats. However, the constraints imposed by San Riemo’s particular grid and mixture of residential forms mean that no binding, egalitarian nucleus has emerged in terms of surfaces; also, the overall spatial efficiency seems too low — but this currently affects the entire building, including communal areas. In this form of nucleus living, therefore, not every flat can shrink back to the desired starting size of two rooms and approximately 50 m2 — thus, ultimately not fitting into the size category required by the housing subsidy body.

This means that nucleus living in San Riemo, which in its concrete form is currently illegal in any case, cannot be legalised without further ado, even by submitting subsequent building applications. But that is quite another issue and the cooperative consciously put up with this to even get into the experiment. The flat currently occupied by the authors, for example, can strictly speaking only shrink back to a two-room dwelling — yet even so with a stately 78m2 approximately. Through various conversions, which would also affect a non-nucleus flat, it could made to shrink to approx. 64 m2 and two rooms with a very poorly lit, but very roomy kitchen. However, this is not some crushing architectural criticism of the San Riemo project itself. [18] Starting from the established basic ambition of researching construction projects, it is all about gaining knowledge and learning effects for research studies within the cooperative and, beyond that, at the Chair of Housing.

The implementation of this form of housing within a building structure such as San Riemo, owing to numerous other boundary conditions, [19] is not altogether perfectly attuned to the mechanics and benchmarks of nucleus living. Yet we can gain some experience and knowledge on the use of this form of housing in existing and renovated stock — whether residential or office buildings. The extent to which the high degree of flexibility and, thus, potentially very low inoccupancy rate of nucleus flats, and very efficient circulation, for instance by saving on staircases and lifts, will allow for a certain premium in individual areas will also be examined during the study. In the end, it will be a question of real savings or ‘performance’ compared to other forms of housing and, therefore, a sufficiency issue.

7. Scores

One hypothesis for a further development of nucleus housing is that the grid and circulation principle of a new-build property would have to grow out of nucleus living itself — not the other way around. Also, in a building with nucleus flats, it would no longer be so easy to speak of a classic level of housing supply but, rather, only of a type of flexibility quota or degree. However, the only constant would be the fundamentally limited number of residential units. Yet it is in principle not excluded that in some parts of such a building, there might be comparatively normal flats in the sense that (at least temporarily) these could be classically self-contained again.

8. The gearbox principle

There is a danger — for which no obvious solution is yet in sight — that such buildings could, in effect, drift into the technocratic sphere; [20] the switch mechanism might not always lead to better spatial qualities compared to what conventional residential buildings or efficient floor plans offer on their own merits. The ‘gearbox’ principle for nucleus housing, which we developed out of the San Riemo findings and other references, may now lead to further developments and raises the question of a deeper consideration of dwelling-related concrete elements and practices.

Info graphic.
14
Analysis of the gearbox principle. Design R. Almannai, F. Fischer, Y. Wagner, 2023

The following hypotheses and highlights will illustrate this. They serve as the basis for further investigations.

9. Hypotheses

The following hypotheses and highlights will illustrate this. They serve as the basis for further investigations.

9.1 Lifelong kitchen

The life(long) kitchen is too large for a kitchen and too small for a classic living/dining/cooking design. Basically, it is what you would conventionally call an eat-in kitchen. It functions as a nucleus for the individually pieced-together flat and should still be large enough for a multi-person household. Moreover, it can be expanded by a room interpreted as a living room (with a sofa landscape, etc.). Should the flat shrink into a one-room studio, the kitchen could be designed in such a way that it can also be used as a storage space/built-in wardrobe without any conversion: it would receive clothes instead of dishes and cooking utensils, and thus would not serve as an oversized kitchen but as a flexible, functional, permanently fixed piece of furniture with multiple connotations. It would be beneficial in other respects to explore the extent to which this kitchen could end up being a standardised, identical piece of furniture for the entire building. This would also make it a little easier for residents to move within the building, [21] since one would not find the exact same kitchen in the new flat, but at least a similar one. [22]

Picture of a kitchen.
15
The life(long) kitchen.
9.2 Dissolution of the living room

If the nucleus was reduced to a life(long) kitchen with a large table, a bathroom, and a usage-neutral room, which likewise can be given up, then the classic living room could no longer be quite clearly located in the floor plan. Instead, to a certain extent it would only represent an individual, flexible interpretation of existing rooms. Thus, it would no longer necessarily have to be part of the actual nucleus but could possibly even be relocated to individual, separate rooms, or else to sub-communal or whole-community areas of the building — though it would not have to. [23]

9.3 Dissolution of the residential form

In the three basic rooms (eat-in kitchen, bathroom, and room), with their specific room sizes, and their corresponding arrangement and composition, diverse interpretations of living in a rather rigid structure could also be experienced. Thus, conventional flats and nucleus flats, as well as clusters, large shared flats, and subletting are all equally conceivable. This not only creates flexibility as regards flat sizes or household sizes and household compositions but, also, residential concepts. [24] The flats can be made very compact but equally can be distributed as fragments across the building or floor. The hallway or the circulation zone may thus be claimed by different parties depending on the situation and thus constantly redefines the boundary between community and private life. Boundaries within the building thus become diffuse and spacious. [25]

floor plan.
16
1 Room flat for 1 Person.
floor plan.
17
2 Room flat for 2 Persons.
floor plan.
18
3 Room flat for 2 Persons.
floor plan.
19
3 Room flat for 3 Persons.
floor plan.
20
4 Room flat for 3 Persons.
floor plan.
21
4 Room flat for 4 Persons.
floor plan.
22
5 Room flat for 4 Persons.
floor plan.
23
5 Room flat for 4 Persons.
floor plan.
24
5 Room flat for 5 Persons.
9.4 Treppenzimmer vs Hallway vs Efficiency vs Superswitching

The issue of a hallway's amenity value versus its spatial efficiency in the overall balance of the living area has not really found a solution yet. In the Kurhaus Bergün reference example, the very wide hotel hallway had certain residential qualities — children, at least, could use it intensively as a play area. The qualities of a Treppenzimmer as in San Riemo — a hybrid 42 m2, fully-fledged recreation room, which is both a living and circulation space, are of course much higher and therefore undisputed. Its lower space efficiency also goes without saying.

25
Dissolution of a nucleus to create communal space.
26
Use of the central corridor as a communal space.
27
Widening of the dentral corridor to increase usability and communal space.
Credits

Teaser: Florian Summa
1–4, 7–14, 16–27: Almannai, R., Fischer, F., & Wagner, Y.
2, 10: Based on graphics by Kooperative Grossstadt eG, Tanja Seiner
5–6: Kurhaus Bergün AG
15: Varia - Die Küche zum Leben. https://www.delta-moebel.ch/kuechen/hauswirtschaftraeume/

References
1

The Kooperative Großstadt eG was set up in October 2015 by 16 founding members, mainly architects, including two of the authors of this article: Reem Almannai and Florian Fischer. The impetus for the cooperative was neither the acquisition of planning contracts nor, originally, the provision of accommodation for the founding members themselves, but a countermovement to the housing production status quo in Munich.

2

The term ‘breathing’ was coined by film director Christoph Hochhäusler during the ‘Open Table’ symposium on 09.01.2021.

3

Strictly speaking, only 4 out of the 26 project flats (i.e. approx. 15%) can ‘shrink’ thanks to pre-equipped switch rooms. Currently, the 3 switch rooms that can be accessed independently of the flats can be used indirectly, i.e. via Treppenzimmer or stairwell, by 7 flats/parties for expansion purposes.

4

Nucleus living tries to think dwellings as versatile systems so that a ‘family’ does not have to be static; cf. Lucius Burkhardt: ‘Therefore, in every design, whether we design the nature of our family and how we wish to live, or our flat, a fixed system must be set up so that the rest can be kept mobile". Burckhardt, L. (2004). Wer plant die Planung? Architektur, Politik und Mensch (J. Fezer & M. Schmitz, Hrsg.; 2. Auflage). Martin Schmitz Verlag. P. 281–293.

5

While developing the programmatic foundations for San Riemo, Reem Almannai and Florian Fischer became part of the resident group and nucleus housing experiment, which has been ongoing since the building was moved into in October 2020. Parts of the research on nucleus living is therefore to be understood as ‘action research".

6

About scepticism regarding an elaborate provision of flexibility, such as movable partition walls, see Burckhardt, 2004, P. 281-293.

7

‘Nucleus living will explore the extent to which a more flexible allocation of these areas leads to a new form of organisation in which the rooms of several flats are first pooled and then rearranged across the board. Individual rooms should be designed in such a way that they can be allocated or programmed by the residential parties themselves. The idea behind this is that, depending on the residents' living situation, the flats can either expand or shrink. The notion of the self-contained flat is thus put up for negotiation’. Auslobung zum offenen Wettbewerb San Riemo (Noch nicht online). P. 33. https://kooperative-grossstadt.de/san-riemo-wettbewerb/ See also Offener Realisierungswettbewerb FREIHAMPTON. Protokoll der 1. Preisgerichtssitzung (23.06.2019). https://kooperative-grossstadt.de/wp-content/uploads/2019/07/FREIHAMPTON-Protokoll-Preisgerichtssitzung.pdf

8

For a typical critique of flexibility of use using the example of the Hellmutstraße project in Zurich, see Lienhart, J. (1996). Nachbarschaft bauen. Hochparterre. Zeitschrift für Architektur und Design, 9. P. 21-22. https://www.e-periodica.ch/digbib/view?pid=hoc-001%3A1996%3A9%3A%3A356#383

Please note the relatively short observation period of only 5 years after completion. According to current discussions with residents (interviews for an as yet unpublished film project at the Chair of Housing at RWTH Aachen University), the flexibility embedded in the project has definitely been delivered over a period of more than 30 years.

9

For the problem of switch rooms enclosed between two flats, see Glockner, M., & Gysi, S. (2009). Hausgemeinschaften—Erkenntnisse und Beispiele. ETH Wohnforum - ETH Case. P. 23. https://wohnforum.arch.ethz.ch/publikationen/forschungsberichte/2009/hausgemeinschaften-erkenntnisse-und-beispiele.html

10

The Kurhaus Bergün was built in 1903 by architect Josef Franz Huwyler-Boller during the entry into service of the Albula railway line and opened in 1906. From 1952, it was owned for fifty years by the Swiss Association for Family Hostels. Kurhaus Bergün AG bought the building in 2002 and since then has been gradually restoring it together with the architectural firm Dalcher Studer Architekten. Geschichte Kurhaus Bergün. https://kurhausberguen.ch/kurhaus/geschichte

11

For a brief description of the historical and typological development of flexibility in housing, see Jürgenhake, B., & Leupen, B. (2005). Flexibilität und Wohnungsbau—Historische und typologische Entwicklungen. Bauwelt, 5. P. 22–25. https://www.bauwelt.de/themen/bw_2005-05_Flexibilitaet_und_Wohnungsbau-2102124.html

12

Architects/design authors: A.D.P. Walter Ramseier & Beatrice Ljaskowsky, study assignment 1985, further development and completion by 1991.

13

Self-contained residential units or flats that are connected to several units of use in a building must legally-speaking each have their own entrance and must be accessed separately. The entrance may be located directly on the outside of the building or may be reached via its circulation routes (stairwell, lift or hallway). See Abgeschlossenheit (Bauwesen). Wikipedia. https://de.wikipedia.org/wiki/Abgeschlossenheit_(Bauwesen)

Self-containment and the so-called self-containment certificate guarantee that flats are fully functional and are not reliant on another severalty owner. They are therefore necessary requirements for condominium ownership and the corresponding ‘declarations of division’. However, according to our experience and knowledge, over and over self-containment has been used as a criterion for subsidised rental flats, hence also partly in cooperative housing construction — in connection with dwelling sizes as specified in subsidy criteria. Flats that do not comply with the self-containment criterion are then categorised either as special (communal) forms of living (such as cluster living) or residential homes. In San Riemo, nucleus living has not been implemented as a special form of living; it is therefore illegal from the moment the switch rooms are used for what they were planned for, especially when switching via Treppenzimmer or stairwells. In addition to other eligibility criteria, fire protection factors also play a key role in construction law. An in-depth legal clarification of self-containment — including a variant that would designate switch rooms as communal areas — is still pending.

14

Cf. Auslobung zum offenen Wettbewerb San Riemo.

15

With flexible, combined rooms, separate rooms or rooms that can be rented out, and that are located in the circulation zones of the building, it should be possible to absorb peaks in the space requirements of households. Glockner & Gysi, 2009, P. 23. An example from a competition tender: ‘This offer [rentable room] is intended to enable residential life cycles within the same settlement, that is to say, additional rooms can be rented depending on stage of life. A total of around 45 rentable rooms with surface areas of 12 to 25 m2 are to be planned, which corresponds to around 10% of all residential units. Around 2/3 of the rooms that can be rented must have a bathroom unit’. Amt für Hochbauten Stadt Zürich. (2015). Wohnen in Leutschenbach-Mitte [Bericht des Preisgerichts]. P.10. https://www.stadt-zuerich.ch/de/planen-und-bauen/portfolio/bauten-anlagen.html?cid=redirect-hbd.html

16

For a more detailed definition and function description of cluster dwellings, see Prytula, M., Rexroth, S., Lutz, M., & May, F. (2020). Cluster-Wohnungen: Eine neue Wohnungstypologie für eine anpassungsfähige Stadtentwicklung. Bundesinstitut für Bau-, Stadt- und Raumforschung im Bundesamt für Bauwesen und Raumordnung. P. 9. https://www.bbsr.bund.de/BBSR/DE/veroeffentlichungen/zukunft-bauen-fp/2020/band-22.html There is a research gap regarding the functioning or acceptance of cluster dwellings in completed projects. See Herdt, T., & Krayer, I. (2019). Mikro-Wohnen / Cluster-Wohnen: Evaluation gemeinschaftlicher Wohnformen für Kleinsthaushalte. ETH Wohnforum – ETH CASE. P. 33–36. https://www.bwo.admin.ch/bwo/de/home/Wohnungsmarkt/studien-und-publikationen/mikro-wohnen.html or also in Glockner & Gysi 2009, P. 35.

17

As an example of a pertinent approach, see Juppien, A., & Zemp, R. (2021). Redefine the In-Between: Die Bedeutung des Zwischenraums als Komplementärraum der Wohnung (No. 17/2021; BBSR-Online-Publikation). Hochschule Luzern – Technik & Architektur Institut für Architektur (IAR). https://sites.hslu.ch/architektur/redefine-the-in-between/ For an extended consideration of the topic of shared living, see Mensch, K. (2012). Bericht zur Fachtagung Gemeinschaften bauen. Veränderte Gesellschaft – neue Wohnformen [Zusammenfassung]. Schader Stiftung. P. 4–9. https://www.schader-stiftung.de/service/publikationen/kategorie/stadtentwicklung-und-wohnen/publikation/gemeinschaften-bauen-veraenderte-gesellschaft-neue-wohnformen

18

Two of the authors of this piece of research are themselves beneficiaries of this generosity, see footnote No.5.

19

These include: the actual property size and construction window in the prevailing binding site plan; the situation of the resident group in terms of housing mix and household sizes; the cost-efficient circulation concept involving Treppenzimmer, hence ‘only’ two stairwells owing to an unfavourable building length; and the specific building grid, with same-sized, barrier-free individual rooms.

20

As regards the potential dangers or risks of technocratic architectural concepts, see Häußermann, H., & Siebel, W. (1996). Soziologie des Wohnens: Eine Einführung in Wandel und Ausdifferenzierung des Wohnens. Juventa. P. 48. The errors of streamlined and strictly defined concepts in functional terms are dealt with in Jürgenhake & Leupen, 2005, P. 22. Here, the notion of the polyvalence of residential buildings is contrasted with the conception of a residential building wired towards maximum standardised efficiency. In this respect, the gearbox-nucleus housing variant offers the prospect of reconciling the two tendencies.

21

Similarly to the relevant statutes in Hellmi, mandatory relocation within the cooperative or individual building is also common practice in other Swiss housing cooperatives in order to avoid inoccupancy. In the Munich setting, in particular, including in the Kooperative Großstadt, the corresponding regulations basically also apply in the subsidised housing sector, but are not implemented restrictively in practice and in terms of rental law.

22

The significance that a move to new accommodation can have for an individual is by no means to be ignored here. For a more detailed consideration of the importance of a change of accommodation, see Hasse, J. (2020). Wohnungswechsel: Phänomenologie des Ein- und Auswohnens. Transcript. P. 48.

23

For a sociological derivation of the origin and role of the living room since the 19th century, see Häußermann & Siebel, 1996, P. 29/51-55. The step backwards proposed here is based on ending the hierarchical position of living rooms, which until now has always been at the expense of all other rooms in dwellings, ibid. P. 51.

24

Of course, this would then be the ‘wonder response’ (which therefore deserves to be fully mistrusted) to any tendencies towards differentiation cf. ibid., ‘Tendenzen des Wandels’ chapter with which the housing market in Germany has been confronted for over 30 years and to which it has nevertheless not provided the appropriate answers in appropriately large numbers. However, this concrete proposal settles nothing in relation to property issues and other socio-political, sociological, and housing policy aspects of the omnivalence proclaimed here.

For a contemporary assessment of individualisation vs neutrality, see Glockner & Gysi, 2009, P. 23.

25

For notes on boundaries between private and communal, and the importance of hideaways, ibid., P. 34.

1

The Kooperative Großstadt eG was set up in October 2015 by 16 founding members, mainly architects, including two of the authors of this article: Reem Almannai and Florian Fischer. The impetus for the cooperative was neither the acquisition of planning contracts nor, originally, the provision of accommodation for the founding members themselves, but a countermovement to the housing production status quo in Munich.

2

The term ‘breathing’ was coined by film director Christoph Hochhäusler during the ‘Open Table’ symposium on 09.01.2021.

3

Strictly speaking, only 4 out of the 26 project flats (i.e. approx. 15%) can ‘shrink’ thanks to pre-equipped switch rooms. Currently, the 3 switch rooms that can be accessed independently of the flats can be used indirectly, i.e. via Treppenzimmer or stairwell, by 7 flats/parties for expansion purposes.

4

Nucleus living tries to think dwellings as versatile systems so that a ‘family’ does not have to be static; cf. Lucius Burkhardt: ‘Therefore, in every design, whether we design the nature of our family and how we wish to live, or our flat, a fixed system must be set up so that the rest can be kept mobile". Burckhardt, L. (2004). Wer plant die Planung? Architektur, Politik und Mensch (J. Fezer & M. Schmitz, Hrsg.; 2. Auflage). Martin Schmitz Verlag. P. 281–293.

5

While developing the programmatic foundations for San Riemo, Reem Almannai and Florian Fischer became part of the resident group and nucleus housing experiment, which has been ongoing since the building was moved into in October 2020. Parts of the research on nucleus living is therefore to be understood as ‘action research".

6

About scepticism regarding an elaborate provision of flexibility, such as movable partition walls, see Burckhardt, 2004, P. 281-293.

7

‘Nucleus living will explore the extent to which a more flexible allocation of these areas leads to a new form of organisation in which the rooms of several flats are first pooled and then rearranged across the board. Individual rooms should be designed in such a way that they can be allocated or programmed by the residential parties themselves. The idea behind this is that, depending on the residents' living situation, the flats can either expand or shrink. The notion of the self-contained flat is thus put up for negotiation’. Auslobung zum offenen Wettbewerb San Riemo (Noch nicht online). P. 33. https://kooperative-grossstadt.de/san-riemo-wettbewerb/ See also Offener Realisierungswettbewerb FREIHAMPTON. Protokoll der 1. Preisgerichtssitzung (23.06.2019). https://kooperative-grossstadt.de/wp-content/uploads/2019/07/FREIHAMPTON-Protokoll-Preisgerichtssitzung.pdf

8

For a typical critique of flexibility of use using the example of the Hellmutstraße project in Zurich, see Lienhart, J. (1996). Nachbarschaft bauen. Hochparterre. Zeitschrift für Architektur und Design, 9. P. 21-22. https://www.e-periodica.ch/digbib/view?pid=hoc-001%3A1996%3A9%3A%3A356#383

Please note the relatively short observation period of only 5 years after completion. According to current discussions with residents (interviews for an as yet unpublished film project at the Chair of Housing at RWTH Aachen University), the flexibility embedded in the project has definitely been delivered over a period of more than 30 years.

9

For the problem of switch rooms enclosed between two flats, see Glockner, M., & Gysi, S. (2009). Hausgemeinschaften—Erkenntnisse und Beispiele. ETH Wohnforum - ETH Case. P. 23. https://wohnforum.arch.ethz.ch/publikationen/forschungsberichte/2009/hausgemeinschaften-erkenntnisse-und-beispiele.html

10

The Kurhaus Bergün was built in 1903 by architect Josef Franz Huwyler-Boller during the entry into service of the Albula railway line and opened in 1906. From 1952, it was owned for fifty years by the Swiss Association for Family Hostels. Kurhaus Bergün AG bought the building in 2002 and since then has been gradually restoring it together with the architectural firm Dalcher Studer Architekten. Geschichte Kurhaus Bergün. https://kurhausberguen.ch/kurhaus/geschichte

11

For a brief description of the historical and typological development of flexibility in housing, see Jürgenhake, B., & Leupen, B. (2005). Flexibilität und Wohnungsbau—Historische und typologische Entwicklungen. Bauwelt, 5. P. 22–25. https://www.bauwelt.de/themen/bw_2005-05_Flexibilitaet_und_Wohnungsbau-2102124.html

12

Architects/design authors: A.D.P. Walter Ramseier & Beatrice Ljaskowsky, study assignment 1985, further development and completion by 1991.

13

Self-contained residential units or flats that are connected to several units of use in a building must legally-speaking each have their own entrance and must be accessed separately. The entrance may be located directly on the outside of the building or may be reached via its circulation routes (stairwell, lift or hallway). See Abgeschlossenheit (Bauwesen). Wikipedia. https://de.wikipedia.org/wiki/Abgeschlossenheit_(Bauwesen)

Self-containment and the so-called self-containment certificate guarantee that flats are fully functional and are not reliant on another severalty owner. They are therefore necessary requirements for condominium ownership and the corresponding ‘declarations of division’. However, according to our experience and knowledge, over and over self-containment has been used as a criterion for subsidised rental flats, hence also partly in cooperative housing construction — in connection with dwelling sizes as specified in subsidy criteria. Flats that do not comply with the self-containment criterion are then categorised either as special (communal) forms of living (such as cluster living) or residential homes. In San Riemo, nucleus living has not been implemented as a special form of living; it is therefore illegal from the moment the switch rooms are used for what they were planned for, especially when switching via Treppenzimmer or stairwells. In addition to other eligibility criteria, fire protection factors also play a key role in construction law. An in-depth legal clarification of self-containment — including a variant that would designate switch rooms as communal areas — is still pending.

14

Cf. Auslobung zum offenen Wettbewerb San Riemo.

15

With flexible, combined rooms, separate rooms or rooms that can be rented out, and that are located in the circulation zones of the building, it should be possible to absorb peaks in the space requirements of households. Glockner & Gysi, 2009, P. 23. An example from a competition tender: ‘This offer [rentable room] is intended to enable residential life cycles within the same settlement, that is to say, additional rooms can be rented depending on stage of life. A total of around 45 rentable rooms with surface areas of 12 to 25 m2 are to be planned, which corresponds to around 10% of all residential units. Around 2/3 of the rooms that can be rented must have a bathroom unit’. Amt für Hochbauten Stadt Zürich. (2015). Wohnen in Leutschenbach-Mitte [Bericht des Preisgerichts]. P.10. https://www.stadt-zuerich.ch/de/planen-und-bauen/portfolio/bauten-anlagen.html?cid=redirect-hbd.html

16

For a more detailed definition and function description of cluster dwellings, see Prytula, M., Rexroth, S., Lutz, M., & May, F. (2020). Cluster-Wohnungen: Eine neue Wohnungstypologie für eine anpassungsfähige Stadtentwicklung. Bundesinstitut für Bau-, Stadt- und Raumforschung im Bundesamt für Bauwesen und Raumordnung. P. 9. https://www.bbsr.bund.de/BBSR/DE/veroeffentlichungen/zukunft-bauen-fp/2020/band-22.html There is a research gap regarding the functioning or acceptance of cluster dwellings in completed projects. See Herdt, T., & Krayer, I. (2019). Mikro-Wohnen / Cluster-Wohnen: Evaluation gemeinschaftlicher Wohnformen für Kleinsthaushalte. ETH Wohnforum – ETH CASE. P. 33–36. https://www.bwo.admin.ch/bwo/de/home/Wohnungsmarkt/studien-und-publikationen/mikro-wohnen.html or also in Glockner & Gysi 2009, P. 35.

17

As an example of a pertinent approach, see Juppien, A., & Zemp, R. (2021). Redefine the In-Between: Die Bedeutung des Zwischenraums als Komplementärraum der Wohnung (No. 17/2021; BBSR-Online-Publikation). Hochschule Luzern – Technik & Architektur Institut für Architektur (IAR). https://sites.hslu.ch/architektur/redefine-the-in-between/ For an extended consideration of the topic of shared living, see Mensch, K. (2012). Bericht zur Fachtagung Gemeinschaften bauen. Veränderte Gesellschaft – neue Wohnformen [Zusammenfassung]. Schader Stiftung. P. 4–9. https://www.schader-stiftung.de/service/publikationen/kategorie/stadtentwicklung-und-wohnen/publikation/gemeinschaften-bauen-veraenderte-gesellschaft-neue-wohnformen

18

Two of the authors of this piece of research are themselves beneficiaries of this generosity, see footnote No.5.

19

These include: the actual property size and construction window in the prevailing binding site plan; the situation of the resident group in terms of housing mix and household sizes; the cost-efficient circulation concept involving Treppenzimmer, hence ‘only’ two stairwells owing to an unfavourable building length; and the specific building grid, with same-sized, barrier-free individual rooms.

20

As regards the potential dangers or risks of technocratic architectural concepts, see Häußermann, H., & Siebel, W. (1996). Soziologie des Wohnens: Eine Einführung in Wandel und Ausdifferenzierung des Wohnens. Juventa. P. 48. The errors of streamlined and strictly defined concepts in functional terms are dealt with in Jürgenhake & Leupen, 2005, P. 22. Here, the notion of the polyvalence of residential buildings is contrasted with the conception of a residential building wired towards maximum standardised efficiency. In this respect, the gearbox-nucleus housing variant offers the prospect of reconciling the two tendencies.

21

Similarly to the relevant statutes in Hellmi, mandatory relocation within the cooperative or individual building is also common practice in other Swiss housing cooperatives in order to avoid inoccupancy. In the Munich setting, in particular, including in the Kooperative Großstadt, the corresponding regulations basically also apply in the subsidised housing sector, but are not implemented restrictively in practice and in terms of rental law.

22

The significance that a move to new accommodation can have for an individual is by no means to be ignored here. For a more detailed consideration of the importance of a change of accommodation, see Hasse, J. (2020). Wohnungswechsel: Phänomenologie des Ein- und Auswohnens. Transcript. P. 48.

23

For a sociological derivation of the origin and role of the living room since the 19th century, see Häußermann & Siebel, 1996, P. 29/51-55. The step backwards proposed here is based on ending the hierarchical position of living rooms, which until now has always been at the expense of all other rooms in dwellings, ibid. P. 51.

24

Of course, this would then be the ‘wonder response’ (which therefore deserves to be fully mistrusted) to any tendencies towards differentiation cf. ibid., ‘Tendenzen des Wandels’ chapter with which the housing market in Germany has been confronted for over 30 years and to which it has nevertheless not provided the appropriate answers in appropriately large numbers. However, this concrete proposal settles nothing in relation to property issues and other socio-political, sociological, and housing policy aspects of the omnivalence proclaimed here.

For a contemporary assessment of individualisation vs neutrality, see Glockner & Gysi, 2009, P. 23.

25

For notes on boundaries between private and communal, and the importance of hideaways, ibid., P. 34.

1. Breathing folds 2. Nucleus living study 3. Initial idea and reversion reference 4. Role models 5. Differentiation from cluster living 6. Concrete experiences and studies 7. Scores 8. The gearbox principle 9. Hypotheses 9.1 Lifelong kitchen 9.2 Dissolution of the living room 9.3 Dissolution of the residential form 9.4 Treppenzimmer vs Hallway vs Efficiency vs Superswitching Credits
NUL-Treppenzimmer im Nukleuswohnen in San Riemo, kurz nach dem Einzug. Foto: Florian Summa
NUL-Fig_1
1
Composition of the nucleus.
NUL-Fig_2
2
Function of the nucleusliving typology.
NUL-Fig_3
3
Treppenzimmer in San Riemo.
NUL-Fig_4
4
Floor plan of the Kurhaus Bergün.
NUL-Fig_5
5
Room switchable via the corridor in the Kurhaus Bergün.
NUL-Fig_6
6
Directly connectable room in the Kurhaus Bergün.
NUL-Fig_7
7
Role models.
NUL-Fig_8
8
Floor plan layout with nuclei and switchable individual rooms.
NUL-Fig_9
9
Schematic and idealised illustration of the floor plan layout.
NUL-Fig_10
10
Function of the Clusterliving typology.
NUL-Fig_11
11
Possible accesses per room.
NUL-Fig_12
12
Switchability of the rooms.
NUL-Fig_13
13
Fire protection scenarios.
NUL-Fig_14
14
Analysis of the gearbox principle. Design R. Almannai, F. Fischer, Y. Wagner, 2023
NUL-Lebenslangküche
15
The life(long) kitchen.
NUL-Fig_16
16
1 Room flat for 1 Person.
NUL-Fig_17
17
2 Room flat for 2 Persons.
NUL-Fig_18
18
3 Room flat for 2 Persons.
NUL-Fig_19
19
3 Room flat for 3 Persons.
NUL-Fig_20
20
4 Room flat for 3 Persons.
NUL-Fig_21
21
4 Room flat for 4 Persons.
NUL-Fig_22
22
5 Room flat for 4 Persons.
NUL-Fig_23
23
5 Room flat for 4 Persons.
NUL-Fig_24
24
5 Room flat for 5 Persons.
NUL-Fig_25
25
Dissolution of a nucleus to create communal space.
NUL-Fig_26
26
Use of the central corridor as a communal space.
NUL-Fig_27
27
Widening of the dentral corridor to increase usability and communal space.
Almannai, Reem, et al. "Nucleus Living." Wohnbau, April 10, 2025, https://www.wohnbau.site/nucleus-living.
Almannai, Reem, Fischer, Florian, & Wagner, Yanik. (2025, April 10). Nucleus Living. Wohnbau. https://www.wohnbau.site/nucleus-living
Almannai, Reem, Fischer, Florian and Wagner, Yanik (2025) Nucleus Living, Wohnbau. Available at: https://www.wohnbau.site/nucleus-living (Accessed: 19 December 2025)
Almannai, Reem, Fischer, Florian, and Wagner, Yanik. "Nucleus Living." Wohnbau, April 10, 2025. https://www.wohnbau.site/nucleus-living.
Almannai Reem, Fischer Florian, Wagner Yanik. Nucleus Living [Internet]. Wohnbau; 2025 [cited 2025 Apr 10]. Available from: https://www.wohnbau.site/nucleus-living
Copy to clipboard
Download BibLaTeX